18 Aug RENOVATION AND ADDITION FOR ARCHITECT DESIGNED HOME BUILDING IN ROSE BAY, EASTERN SUBURBS, SYDNEY COMPLETED BY DOMUS HOMES.
Location – Rose Bay.
Rose Bay is an established harbour side suburb comprising family homes on large blocks of land, many with pools and many with harbour views with many on the harbour. Apartment blocks are scattered through Rose Bay. Rose Bay is close to the city and is surrounded by the suburbs of North Bondi, Dover Heights, Vaucluse and Bellevue Hill and is close to Bondi, Bondi Beach, Double Bay, Watsons Bay and Point Piper.
Housing styles vary greatly in Rose Bay from new duplexes, modern large luxury homes, Federation homes, Californian cottages, renovated and original semis as well as face brick and new modern apartment buildings.
Background.
The client approached Domus Homes to project manage the architectural design and construction documentation and the building delivery of their project after having secured Development Approval comprising lower ground floor and first floor additions plus renovations to the mid floor level. Domus Homes’ architects improved the design and made the house comply where it was deficient.
Domus Homes had to submit a Section 96 application to Woollahra Council to approve the design alterations, which Domus Homes successfully managed for the clients.
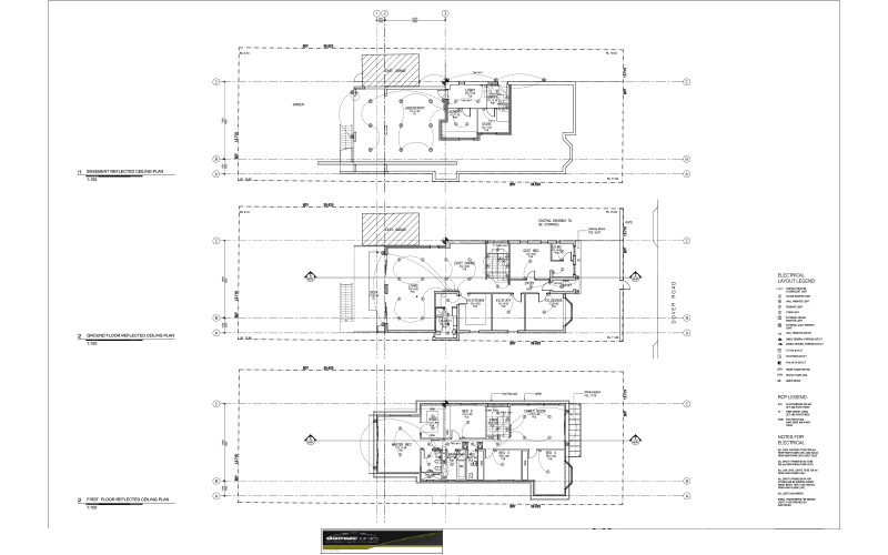
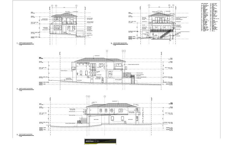
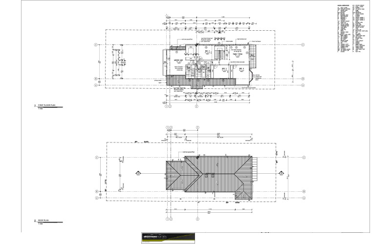
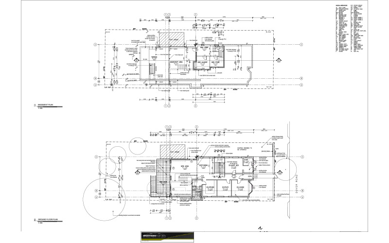
This large house when completed would accommodate a rumpus, terrace, laundry, storage and bathroom on the lower level, a guest bedroom, bathroom, kitchen, living, dining room plus terrace on the mid level with three bedrooms, two bathrooms and a large family study area on the first floor area.
Domus Homes after gaining Section 96 approval, documented the project, tendered it and successfully project managed the construction delivery of the house to completion.
Why Use Domus Homes to Deliver Your Luxury Home or Duplex Building or Home, Semi, Terrace or Apartment Renovation or Addition from Concept to Completion?
Designing and delivering a luxury home, duplex or home, semi, terrace or apartment renovation and addition for you in Rose Bay in Sydney’s Eastern Suburbs is made easy with Domus Homes because we do everything for you and we have a lot of experience. You deal with the principal of Domus Homes from
Concept to Completion in a one stop shop scenario for everything. Domus Homes delivers the full architectural, project management and interior design services to you at extremely economical prices, but without compromising on the service level, design or building quality to you. Or we can simply provide DA or building services to you.
Our architects and interior designers are of the best in Sydney. Our consultants and builders are handpicked for their experience, reliability, quality and economy with the building company owners working on the tools. Our wholesalers are accessible to you so that you save more money.
Everything Domus Homes does is designed to maximise its service to you whilst minimising your costs whilst delivering exceptional quality. Domus Homes will ensure that the process is made safe and easy for you so that you enjoy the process and the creation of your new home, renovation or addition.
We will come to you and we will listen to you and design and build your renovation, dream home, semi, terrace, townhouse, apartment, duplex or dual occupancy in whatever style you desire whether it be Modern Federation, Classical Contemporary, Ultra Modern, Hamptons or Italian Villa style, Domus Homes can and will do it for you.
For your free site inspection and quote call Domus Homes now on 02.9369.3592
Like Domus Homes on Facebook and Instagram to follow the progress of some of our projects.
Building Dreams into Reality







